A professional home theater not only requires high-quality audio and video equipment,
but also must incorporate both aesthetic and acoustic elements.
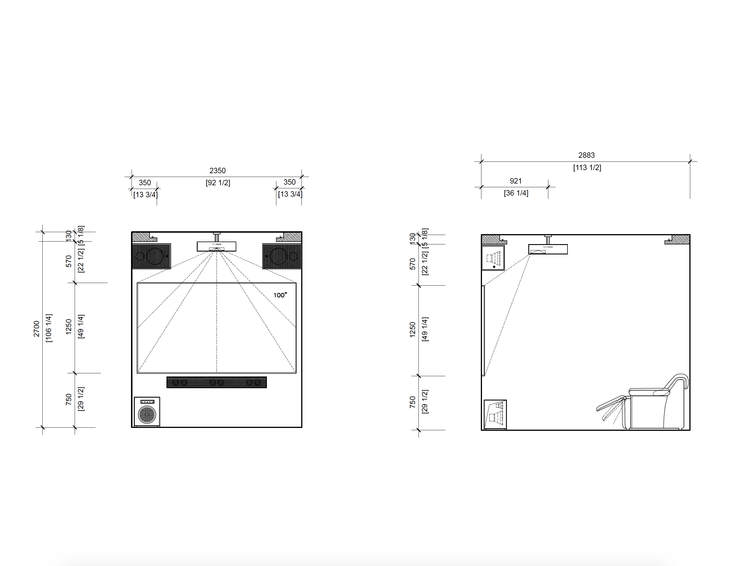
Building a perfect home theater is a systematic project,
where every single detail can impact the overall viewing experience.
2SWAN UPHOLSTERY ART
CUSTOM UPHOLSTERY

Acoustic Design: Properly arranging acoustic panels and soft-pack modules helps address issues such as reverberation time, frequency response, standing waves, sound diffusion, and noise isolation.
A well-executed acoustic design ensures the best listening environment and sound field in your home theater, delivering a realistic, immersive experience with powerful impact during every viewing.









2SWAN UPHOLSTERY ART
CUSTOM UPHOLSTERY










